TERRENO CON RENTA Y GRAN POTENCIAL PARA DESARROLLO. SAN MARTIN Y MARTIN GARCIA

Venta USD 135.000

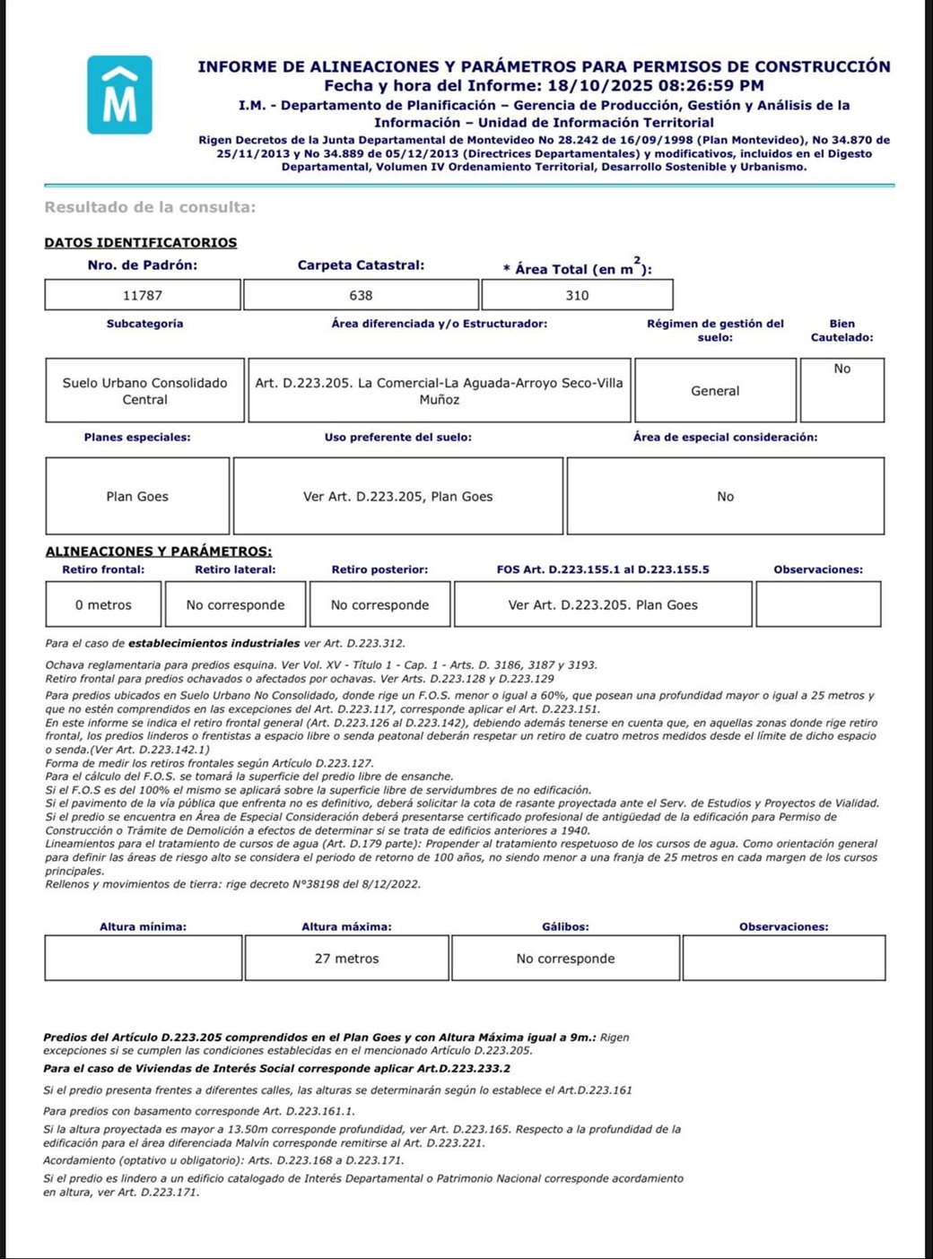
  • 310 m2
  • Ref: CW242387

Detalles

  • Tipo: Terreno
  • Area total: 310 m²

Amenities

  • 11 mts de frente11 mts de frente

Descripción

Se ofrece a la venta un padrón único de 310 m² sobre la calle San Martín 2173/75/77, en una zona de excelente conectividad y con fuerte crecimiento edilicio.
Actualmente el inmueble se encuentra alquilado en $40.000 mensuales, destinado a panadería y vivienda, lo que brinda una renta inmediata mientras se proyecta su desarrollo futuro.
La propiedad está compuesta por tres unidades:
Un local comercial al frente,
Un apartamento de vivienda,
Y una entrada lateral independiente que comunica ambos espacios.
Por su estado general, el conjunto resulta ideal para restaurar o demoler y construir un edificio de apartamentos.
Además, el padrón contiguo también se encuentra a la venta, lo que amplía notablemente el potencial del emprendimiento para un proyecto de mayor escala.

Una excelente oportunidad tanto para inversores como para desarrolladores, en un punto con alta demanda residencial y comercial de Montevideo.

Fb Soluciones Inmobiliarias

095 296 400

* Las superficies de los apartamentos incluyen muros divisorios hasta su eje, ductos, terrazas, balcones, prorrateo de área común, circulación vertical exclusivamente de planta.

* Todas las medidas enunciadas son meramente orientativas, las medidas exactas serán las que se expresen en el respectivo título de propiedad de cada inmueble. Todas las fotos, imagenes y videos son meramente ilustrativos y no contractuales. Los precios enunciados son meramente orientativos y no contractuales.

Propiedades Similares