Propiedad RENTADA con local comercial y vivienda.| San Martín entre Martín García e Isidoro de María

Venta USD 135.000

  • 4Ambientes
  • 2Baños
  • 279 m2
  • Ref: CW242390

Detalles

  • Tipo: Local Comercial
  • Metros Edificados : 279
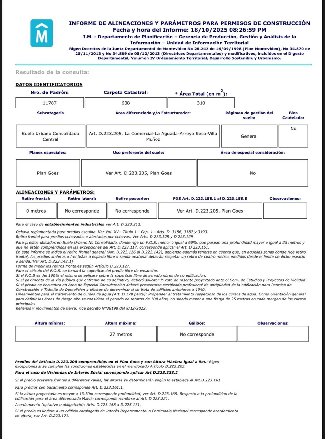
  • Area total: 310 m²
  • Construído: 0
  • Estado: Malo
  • Ambientes: 4
  • Baños: 2
  • Ubicación: Frente
  • Orientación: Este

Amenities

  • Cocina DefinidaCocina Definida
  • Sin CalefacciónSin Calefacción
  • 11 mts de frente11 mts de frente

Descripción

Excelente oportunidad de inversión en una zona con gran movimiento comercial y residencial.
Ubicada sobre calle San Martín 2173/75/77, entre Martín García e Isidoro de María, esta propiedad combina local comercial + vivienda, ideal para uso propio o renta.

Superficie total: 310 m²

Actualmente se encuentra alquilada en $40.000 mensuales, funcionando como panadería con vivienda, lo que asegura renta inmediata para el comprador.

El padrón está compuesto por:

Local comercial al frente, con buena exposición y vidriera a la calle. actualmente es una panaderia funcionando.

vivienda : Apartamento al frente con entrada independiente de un dormitorio cocina y baño, de dimensiones cómodas.

Entrada lateral independiente que comunica ambas áreas y permite distintos usos o accesos.

Si bien la propiedad requiere restauración, su amplia superficie y distribución flexible permiten múltiples posibilidades: continuar con el rubro actual, adaptarla para otros emprendimientos comerciales o proyectar una futura obra de desarrollo.

Una opción con excelente relación entre renta, ubicación y potencial, en una zona consolidada de Montevideo con fácil acceso y todos los servicios.

Consultá para coordinar visita o conocer más sobre las características del inmueble.

Fb Soluciones Inmobiliarias

095 296 400

* Las superficies de los apartamentos incluyen muros divisorios hasta su eje, ductos, terrazas, balcones, prorrateo de área común, circulación vertical exclusivamente de planta.

* Todas las medidas enunciadas son meramente orientativas, las medidas exactas serán las que se expresen en el respectivo título de propiedad de cada inmueble. Todas las fotos, imagenes y videos son meramente ilustrativos y no contractuales. Los precios enunciados son meramente orientativos y no contractuales.

Propiedades Similares